Learning

One Bedroom Design House

One Bedroom Design House
One Bedroom Design House

Designing a one bedroom design house can be an exciting and rewarding project. Whether you're building from scratch or renovating an existing space, creating a functional and aesthetically pleasing one-bedroom home requires careful planning and attention to detail. This guide will walk you through the essential steps and considerations for designing a one-bedroom house that maximizes space, comfort, and style.

Assessing Your Needs and Space

Before diving into the design process, it's crucial to assess your needs and the available space. Consider the following factors:

  • Lifestyle and Preferences: Think about your daily routines, hobbies, and entertainment preferences. Do you need a home office, a dedicated dining area, or a spacious living room?
  • Family Size: Even though it's a one-bedroom house, consider if you might need additional sleeping arrangements for guests or family members.
  • Future Plans: Think about how your needs might change in the future. For example, if you plan to start a family, you might want to design a space that can be easily converted into a two-bedroom home.

Once you have a clear understanding of your needs, measure the available space to determine the layout and dimensions of each room. This will help you create a functional and efficient floor plan.

Creating a Functional Floor Plan

A well-designed floor plan is the foundation of a successful one bedroom design house. Here are some key considerations for creating a functional layout:

  • Open Concept Living: An open-concept layout can make a small space feel larger and more inviting. Consider combining the living room, dining area, and kitchen into one open space.
  • Zoning: Even in an open-concept layout, it's important to create distinct zones for different activities. Use furniture, rugs, and lighting to define each zone.
  • Traffic Flow: Ensure that the layout allows for easy movement between rooms. Avoid placing furniture or obstacles in high-traffic areas.
  • Storage Solutions: Maximize storage space by incorporating built-in cabinets, shelves, and closets. Consider using multi-functional furniture, such as a sofa bed or a coffee table with storage.

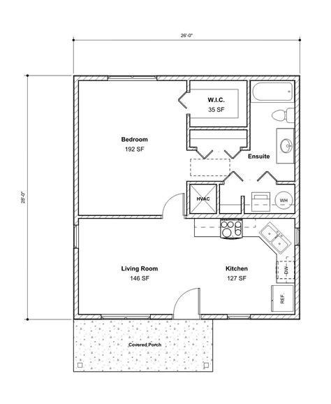
Here is an example of a simple floor plan for a one bedroom design house:

Room Dimensions (approx.) Key Features
Living Room 12' x 15' Open concept, large windows, built-in shelves
Kitchen 8' x 10' Efficient layout, island or peninsula, ample storage
Dining Area 8' x 10' Adjacent to kitchen, seating for 4-6 people
Bedroom 10' x 12' Walk-in closet, large windows, en-suite bathroom
Bathroom 5' x 8' Shower, toilet, sink, storage

Remember, this is just an example, and your floor plan should be tailored to your specific needs and space.

đź’ˇ Note: Consider consulting with a professional architect or designer to help you create a floor plan that maximizes your space and meets your needs.

Designing the Living Room

The living room is often the heart of a one bedroom design house. It's a space for relaxation, entertainment, and socializing. Here are some tips for designing a functional and stylish living room:

  • Furniture Layout: Arrange furniture in a way that promotes conversation and easy movement. Consider using a sectional sofa or modular furniture to maximize seating and flexibility.
  • Lighting: Layer lighting with a combination of ambient, task, and accent lighting. Use floor lamps, table lamps, and overhead fixtures to create a warm and inviting atmosphere.
  • Color Scheme: Choose a color scheme that reflects your personal style and creates a cohesive look throughout the room. Neutral colors can make a small space feel larger, while bold colors can add personality and drama.
  • Decorative Accents: Add personal touches with artwork, throw pillows, and decorative accessories. These elements can help tie the room together and make it feel like your own.

Living Room Design

Designing the Kitchen

The kitchen is another crucial space in a one bedroom design house. It should be functional, efficient, and inviting. Here are some tips for designing a kitchen that meets your needs:

  • Layout: Choose a layout that maximizes space and efficiency. Common layouts include the galley, L-shaped, and U-shaped kitchens. Consider an island or peninsula for additional counter space and storage.
  • Cabinetry: Opt for cabinets that provide ample storage and organization. Consider using upper cabinets for easy access to frequently used items and lower cabinets for heavier items.
  • Appliances: Choose energy-efficient appliances that fit your cooking and entertaining needs. Consider the size and placement of appliances to ensure they don't overwhelm the space.
  • Countertops: Select durable and easy-to-clean countertops that complement your design style. Popular choices include granite, quartz, and butcher block.

Here are some additional tips for maximizing kitchen space:

  • Use pull-out shelves and organizers to make the most of cabinet space.
  • Install a pot rack or wall-mounted shelves to free up counter space.
  • Consider a kitchen island or peninsula for additional seating and storage.
  • Use a trash can with a built-in recycling bin to keep the space tidy.

Modern Kitchen Design

Designing the Bedroom

The bedroom in a one bedroom design house should be a sanctuary for relaxation and rest. Here are some tips for creating a comfortable and stylish bedroom:

  • Bed Placement: Position the bed against a solid wall for stability and to create a focal point. Consider using a headboard to add visual interest and support.
  • Lighting: Use a combination of ambient, task, and accent lighting to create a cozy atmosphere. Consider using a bedside lamp or wall sconce for reading.
  • Color Scheme: Choose a calming color scheme that promotes relaxation. Soft blues, greens, and neutrals are popular choices for bedrooms.
  • Storage Solutions: Maximize storage space with built-in closets, dressers, and under-bed storage. Consider using multi-functional furniture, such as a bed frame with built-in drawers.

Here are some additional tips for creating a relaxing bedroom:

  • Use blackout curtains or shades to block out light and create a dark, sleep-conducive environment.
  • Add a cozy area rug to anchor the space and add warmth.
  • Use decorative pillows and throws to add texture and visual interest.
  • Consider a canopy or four-poster bed for a romantic and luxurious feel.

Modern Bedroom Design

Designing the Bathroom

The bathroom in a one bedroom design house should be functional, efficient, and stylish. Here are some tips for designing a bathroom that meets your needs:

  • Layout: Choose a layout that maximizes space and efficiency. Consider a shower-tub combo, a walk-in shower, or a standalone tub, depending on your preferences and space constraints.
  • Fixtures: Select fixtures that are both functional and stylish. Consider a modern faucet, a sleek toilet, and a stylish showerhead.
  • Storage: Maximize storage space with built-in cabinets, shelves, and a vanity. Consider using a medicine cabinet or wall-mounted shelves to keep essentials organized.
  • Lighting: Use a combination of ambient and task lighting to create a well-lit and inviting space. Consider using a vanity light or wall sconces for task lighting.

Here are some additional tips for creating a stylish bathroom:

  • Use a large mirror to reflect light and create the illusion of a larger space.
  • Add decorative accents, such as artwork or plants, to personalize the space.
  • Consider using a bold tile pattern or a statement wall to add visual interest.
  • Use a shower curtain or glass doors to enclose the shower area and keep water contained.

Modern Bathroom Design

In conclusion, designing a one bedroom design house involves careful planning, attention to detail, and a focus on functionality and style. By assessing your needs, creating a functional floor plan, and designing each room with care, you can create a home that is both beautiful and practical. Whether you’re building from scratch or renovating an existing space, these tips and considerations will help you create a one-bedroom house that meets your needs and reflects your personal style.

Related Terms:

  • one bedroom layout floor plan
  • simple one room house design
  • simple house design 1 bedroom
  • simple one bedroom house designs
  • 1 bedroom house plan template
  • simple 1 bedroom house plans
Facebook Twitter WhatsApp
Related Posts
Don't Miss