Learning

Mobile Home Dimensions

Mobile Home Dimensions
Mobile Home Dimensions

Mobile homes have become a popular housing option due to their affordability, flexibility, and convenience. One of the most critical aspects to consider when purchasing or customizing a mobile home is the mobile home dimensions. Understanding these dimensions can help you make informed decisions about layout, furniture placement, and overall livability. This guide will delve into the various dimensions of mobile homes, their standard sizes, and how to maximize the space within these compact living areas.

Understanding Mobile Home Dimensions

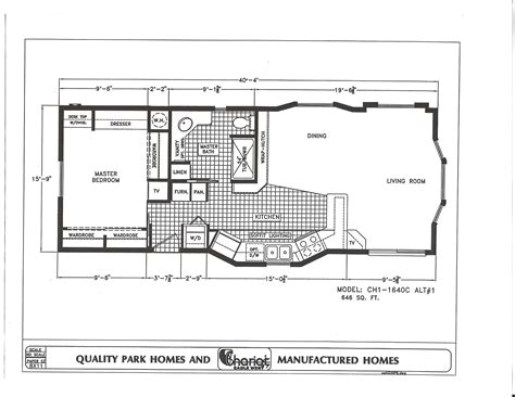
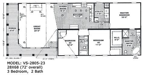
Mobile homes come in a variety of sizes and layouts, each designed to meet different needs and preferences. The dimensions of a mobile home typically refer to its length and width, but it's also important to consider the height and the overall square footage. Here are the key dimensions to keep in mind:

  • Length: The length of a mobile home can range from 40 to 80 feet or more. This dimension is crucial as it determines the number of rooms and the overall layout of the home.
  • Width: The width of a mobile home is usually standardized at 10, 12, 14, or 16 feet. This dimension affects the interior space and the number of rooms that can fit comfortably.
  • Height: The height of a mobile home is typically around 13 to 14 feet, including the roof. This dimension is important for ensuring that the home can accommodate standard ceiling heights and any additional features like lofts or attic spaces.
  • Square Footage: The total square footage is calculated by multiplying the length and width. This gives you an idea of the overall living space available in the mobile home.

Standard Mobile Home Sizes

Mobile homes are available in several standard sizes, each with its own set of dimensions. Here are some of the most common sizes:

Size Length (feet) Width (feet) Square Footage (approx.)
Single-Wide 40-80 10-16 400-1,280
Double-Wide 20-40 20-32 800-1,600
Triple-Wide 20-40 30-48 1,200-2,400

These sizes provide a range of options to suit different needs, from small, cozy homes to larger, more spacious living areas. The choice of size will depend on your specific requirements, budget, and the amount of space you have available.

Maximizing Space in Mobile Homes

One of the challenges of living in a mobile home is making the most of the limited space. Here are some tips to help you maximize the space in your mobile home:

  • Use Multi-Functional Furniture: Opt for furniture that serves multiple purposes, such as a sofa bed or a coffee table with built-in storage. This can help you save space and keep your home organized.
  • Optimize Storage: Make use of vertical space by installing shelves, cabinets, and wall-mounted storage units. This can help you keep your belongings organized and out of the way.
  • Choose Light Colors: Light colors can make a small space feel larger and more open. Consider using light-colored paint, flooring, and furniture to create a brighter, more spacious feel.
  • Keep It Clutter-Free: Clutter can make a small space feel even smaller. Keep your mobile home tidy and organized by regularly decluttering and storing items properly.
  • Use Mirrors: Mirrors can create the illusion of more space by reflecting light and making a room feel larger. Place mirrors strategically to maximize their effect.

By implementing these tips, you can make the most of your mobile home's dimensions and create a comfortable, functional living space.

💡 Note: Always measure your mobile home's dimensions accurately before purchasing furniture or making any significant changes to the layout. This will help ensure that everything fits perfectly and that you make the most of the available space.

Customizing Mobile Home Dimensions

If you're looking to customize your mobile home's dimensions, there are several options available. Here are some ways to modify the dimensions of your mobile home:

  • Adding Rooms: You can add additional rooms to your mobile home by extending the length or width. This can be done by adding a new section to the home or by building an addition.
  • Raising the Roof: If you need more headroom, you can raise the roof of your mobile home. This can be done by adding a new roof structure or by modifying the existing one.
  • Building a Loft: Adding a loft can provide additional living space without increasing the overall dimensions of the mobile home. This is a great option for creating a bedroom, office, or storage area.
  • Expanding the Footprint: If you have the space available, you can expand the footprint of your mobile home by adding a deck, porch, or patio. This can provide additional outdoor living space and enhance the overall appeal of your home.

When customizing your mobile home's dimensions, it's important to work with a professional who has experience in mobile home modifications. This will ensure that the changes are made safely and that the structural integrity of the home is maintained.

🛠️ Note: Always check local building codes and regulations before making any modifications to your mobile home. This will help ensure that your changes are compliant with local laws and that you avoid any potential issues.

Mobile Home Dimensions and Layouts

The layout of a mobile home is closely tied to its dimensions. Understanding the different layouts available can help you choose the one that best suits your needs. Here are some common mobile home layouts:

  • Single-Wide Layouts: Single-wide mobile homes typically have a linear layout, with rooms arranged in a single row. This layout is ideal for smaller families or individuals who prefer a compact living space.
  • Double-Wide Layouts: Double-wide mobile homes offer more flexibility in terms of layout. They can have a variety of configurations, including open-concept living areas, separate bedrooms, and multiple bathrooms.
  • Triple-Wide Layouts: Triple-wide mobile homes provide even more space and flexibility. They can have multiple bedrooms, bathrooms, and living areas, making them ideal for larger families or those who need more space.

When choosing a layout, consider your specific needs and preferences. Think about the number of bedrooms and bathrooms you need, the amount of living space you require, and any special features or amenities you want to include.

By understanding the dimensions and layouts of mobile homes, you can make informed decisions about which type of home is right for you. Whether you're looking for a compact, cozy space or a larger, more spacious living area, there are plenty of options available to suit your needs.

Mobile homes offer a unique and flexible housing solution, and understanding their dimensions is key to making the most of your living space. By considering the length, width, height, and square footage of your mobile home, you can create a comfortable and functional living environment that meets your specific needs and preferences.

From choosing the right size and layout to maximizing space and customizing dimensions, there are many factors to consider when it comes to mobile home dimensions. By taking the time to understand these aspects, you can ensure that your mobile home is a perfect fit for your lifestyle and needs.

In summary, mobile home dimensions play a crucial role in determining the overall livability and functionality of your home. By understanding the standard sizes, maximizing space, and customizing dimensions as needed, you can create a comfortable and efficient living environment that suits your unique needs and preferences.

Related Terms:

  • typical mobile home dimensions
  • double wide mobile home dimensions
  • standard size of mobile home
  • mobile home height
  • mobile home sizes and dimensions
  • mobile home sizes chart
Facebook Twitter WhatsApp
Related Posts
Don't Miss