Learning

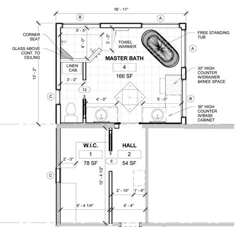
Master Bathroom Floor Plans

Master Bathroom Floor Plans
Master Bathroom Floor Plans

Designing a master bathroom is an exciting project that can significantly enhance the comfort and value of your home. One of the most critical aspects of this design process is creating effective Master Bathroom Floor Plans. These plans serve as the blueprint for your dream bathroom, ensuring that every element is thoughtfully placed and functional. Whether you're planning a complete renovation or building a new home, understanding the key components of master bathroom floor plans is essential.

Understanding the Basics of Master Bathroom Floor Plans

Before diving into the specifics, it's important to grasp the fundamental elements of master bathroom floor plans. These plans typically include:

  • Layout: The arrangement of fixtures and furniture within the space.
  • Dimensions: The measurements of the room and each fixture.
  • Fixtures: The placement of sinks, toilets, showers, and bathtubs.
  • Storage: The inclusion of cabinets, shelves, and other storage solutions.
  • Lighting and Ventilation: The placement of windows, exhaust fans, and lighting fixtures.

Each of these elements plays a crucial role in creating a functional and aesthetically pleasing master bathroom.

Key Considerations for Master Bathroom Floor Plans

When designing your master bathroom floor plans, there are several key considerations to keep in mind:

Space and Layout

The layout of your master bathroom is perhaps the most important aspect of the design. A well-planned layout ensures that the space is both functional and comfortable. Consider the following layout options:

  • Single-Wall Layout: All fixtures are placed along one wall, making it ideal for smaller bathrooms.
  • Double-Wall Layout: Fixtures are placed along two walls, providing more flexibility and space.
  • Three-Wall Layout: Fixtures are placed along three walls, offering ample space and a more open feel.
  • Island Layout: Includes a central island with fixtures, providing a luxurious and spacious feel.

Choose a layout that best fits your available space and desired functionality.

Fixtures and Fittings

The selection and placement of fixtures are crucial for both functionality and aesthetics. Common fixtures include:

  • Sinks: Choose between single or double sinks based on your needs and space.
  • Toilets: Consider the placement to ensure privacy and easy access.
  • Showers and Bathtubs: Decide between a standalone shower, bathtub, or a combination of both.
  • Vanities: Provide storage and counter space, and can be customized to fit your style.

Ensure that each fixture is placed in a way that maximizes usability and comfort.

Storage Solutions

Storage is a critical component of any master bathroom. Effective storage solutions help keep the space organized and clutter-free. Consider the following storage options:

  • Cabinets: Built-in or freestanding cabinets provide ample storage for towels, toiletries, and other essentials.
  • Shelves: Open or closed shelves can be used to display decorative items or store everyday items.
  • Drawers: Incorporate drawers into vanities or cabinets for easy access to smaller items.
  • Niches: Built-in niches in shower walls or above the sink can provide additional storage without taking up floor space.

Choose storage solutions that complement your design and meet your organizational needs.

Lighting and Ventilation

Proper lighting and ventilation are essential for a comfortable and functional master bathroom. Consider the following:

  • Natural Light: Maximize natural light with windows or skylights to create a bright and airy space.
  • Artificial Lighting: Use a combination of ambient, task, and accent lighting to illuminate different areas of the bathroom.
  • Ventilation: Install an exhaust fan to remove moisture and prevent mold and mildew.

Ensure that your lighting and ventilation plan enhances both the functionality and aesthetics of your master bathroom.

Here are some popular master bathroom floor plan ideas to inspire your design:

Traditional Layout

The traditional layout is a classic choice that features a separate shower, bathtub, and double sinks. This layout is ideal for those who prefer a more conventional design and ample space for multiple fixtures.

Modern Layout

The modern layout often includes a walk-in shower, a freestanding bathtub, and a single or double vanity. This layout is perfect for those who prefer a sleek and minimalist design with a focus on functionality.

Luxury Layout

The luxury layout features high-end fixtures, such as a soaking tub, a steam shower, and a double vanity with ample storage. This layout is ideal for those who want a spa-like experience in their master bathroom.

Compact Layout

The compact layout is designed for smaller spaces and often includes a combination shower and tub, a single sink, and efficient storage solutions. This layout is perfect for those who need to maximize space without sacrificing functionality.

Creating Your Master Bathroom Floor Plans

Creating your master bathroom floor plans involves several steps. Here's a guide to help you through the process:

Step 1: Measure Your Space

Begin by measuring the dimensions of your bathroom, including the length, width, and height. This will help you determine the available space for fixtures and furniture.

Step 2: Sketch Your Layout

Sketch a rough layout of your bathroom, including the placement of fixtures, storage, and other elements. Use graph paper or a digital tool to create a scaled drawing.

Step 3: Choose Your Fixtures

Select the fixtures you want to include in your bathroom, such as sinks, toilets, showers, and bathtubs. Consider the size, style, and functionality of each fixture.

Step 4: Plan Your Storage

Determine the storage solutions you need, such as cabinets, shelves, and drawers. Ensure that your storage plan complements your design and meets your organizational needs.

Step 5: Design Your Lighting and Ventilation

Plan your lighting and ventilation, including the placement of windows, exhaust fans, and lighting fixtures. Ensure that your plan enhances both the functionality and aesthetics of your bathroom.

Step 6: Review and Adjust

Review your master bathroom floor plans and make any necessary adjustments. Ensure that your design is functional, aesthetically pleasing, and meets your needs.

πŸ“ Note: Consider consulting with a professional designer or architect to ensure that your master bathroom floor plans are accurate and meet building codes.

Example Master Bathroom Floor Plans

Here are some example master bathroom floor plans to help you visualize different layouts:

Layout Type Description Dimensions
Traditional Separate shower, bathtub, and double sinks 10' x 12'
Modern Walk-in shower, freestanding bathtub, and single vanity 8' x 10'
Luxury Soaking tub, steam shower, and double vanity 12' x 14'
Compact Combination shower and tub, single sink, and efficient storage 6' x 8'

These examples provide a starting point for your master bathroom floor plans. Customize the layout to fit your specific needs and preferences.

Finalizing Your Master Bathroom Floor Plans

Once you have created your master bathroom floor plans, it's time to finalize the details. Here are some steps to help you complete the process:

Step 1: Review Your Plans

Carefully review your master bathroom floor plans to ensure that all elements are included and correctly placed. Make any necessary adjustments to the layout, fixtures, and storage solutions.

Step 2: Create a Detailed Drawing

Create a detailed drawing of your master bathroom floor plans, including all measurements, fixtures, and storage solutions. Use a digital tool or hire a professional to create an accurate and detailed drawing.

Step 3: Obtain Permits

If you are planning a significant renovation, you may need to obtain permits from your local building department. Ensure that your master bathroom floor plans comply with building codes and regulations.

Step 4: Hire Professionals

Hire professionals, such as contractors, plumbers, and electricians, to help with the installation of fixtures and other elements. Ensure that they follow your master bathroom floor plans and meet your specifications.

πŸ“ Note: Always communicate clearly with your professionals to ensure that your vision is executed accurately.

By following these steps, you can create effective master bathroom floor plans that meet your needs and enhance the comfort and value of your home.

Master bathroom floor plans are the foundation of a well-designed and functional master bathroom. By understanding the key components and considerations, you can create a space that is both beautiful and practical. Whether you choose a traditional, modern, luxury, or compact layout, your master bathroom floor plans will guide you through the design process and help you achieve your dream bathroom.

Related Terms:

  • master bathroom floor plan layouts
  • master bathroom design ideas
  • beautiful master bathroom design ideas
  • master bathroom ideas
  • master bathroom design layout ideas
  • master bathroom ideas photo gallery
Facebook Twitter WhatsApp
Related Posts
Don't Miss