Designing an efficient and functional living space is a top priority for many homeowners and architects. One of the most popular and practical layouts is the L-shaped building plan. This design offers a unique blend of functionality and aesthetics, making it a favorite choice for both residential and commercial properties. Whether you're planning a new home, renovating an existing one, or designing a commercial space, understanding the benefits and considerations of an L-shaped building plan can help you make informed decisions.
Understanding the L-Shaped Building Plan
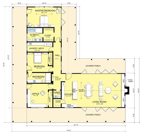
An L-shaped building plan is characterized by its distinctive layout, which features two wings that form an L shape. This design is versatile and can be adapted to various sizes and styles of properties. The L shape allows for a clear separation of spaces while maintaining an open and connected feel. This layout is particularly popular in modern architecture due to its ability to maximize natural light and create a sense of spaciousness.
Benefits of an L-Shaped Building Plan
There are several advantages to choosing an L-shaped building plan for your property. Some of the key benefits include:
- Efficient Use of Space: The L shape allows for efficient use of space, making it ideal for both small and large properties. The layout can accommodate various room configurations, ensuring that every square foot is utilized effectively.
- Natural Light and Ventilation: The design of an L-shaped building plan often includes large windows and open spaces, which allow for ample natural light and ventilation. This not only enhances the aesthetic appeal but also contributes to energy efficiency.
- Flexibility in Design: The L shape offers flexibility in design, allowing for easy customization to suit different needs and preferences. Whether you're planning a residential home or a commercial space, the L shape can be adapted to create a functional and aesthetically pleasing layout.
- Privacy and Separation: The L shape provides a natural separation between different areas of the property, such as living spaces and bedrooms. This can be particularly beneficial in multi-generational homes or shared living spaces.
Design Considerations for an L-Shaped Building Plan
When planning an L-shaped building plan, there are several important considerations to keep in mind. These include:
- Orientation and Site Layout: The orientation of the building and the site layout play a crucial role in the success of an L-shaped building plan. Consider the direction of sunlight, prevailing winds, and the surrounding landscape to optimize natural light and ventilation.
- Room Placement: The placement of rooms within the L shape is essential for creating a functional and comfortable living space. Common configurations include placing the living room and kitchen in one wing and the bedrooms in the other. This allows for a clear separation of public and private spaces.
- Flow and Connectivity: Ensure that the flow and connectivity between different areas of the property are smooth and intuitive. The L shape should facilitate easy movement between rooms while maintaining a sense of separation and privacy.
- Outdoor Spaces: Consider incorporating outdoor spaces, such as patios, decks, or gardens, into your L-shaped building plan. These spaces can extend the living area and provide additional opportunities for relaxation and entertainment.
Common Configurations of L-Shaped Building Plans
There are several common configurations for L-shaped building plans, each with its own unique advantages. Some of the most popular configurations include:
- Single-Story L-Shaped Plan: This configuration features a single-story layout with the L shape forming the main living area. It is ideal for small to medium-sized properties and offers a simple and straightforward design.
- Two-Story L-Shaped Plan: This configuration includes two stories, with the L shape extending vertically. It is suitable for larger properties and allows for more room configurations, such as bedrooms on the upper level and living spaces on the lower level.
- Split-Level L-Shaped Plan: This configuration features a split-level design, with the L shape divided into different levels. It is ideal for properties with sloping terrain and offers a unique and dynamic layout.
Here is a table summarizing the common configurations of L-shaped building plans:
| Configuration | Description | Suitability |
|---|---|---|
| Single-Story L-Shaped Plan | A single-story layout with the L shape forming the main living area. | Small to medium-sized properties. |
| Two-Story L-Shaped Plan | A two-story layout with the L shape extending vertically. | Larger properties with more room configurations. |
| Split-Level L-Shaped Plan | A split-level design with the L shape divided into different levels. | Properties with sloping terrain. |
📝 Note: The choice of configuration will depend on your specific needs, the size of your property, and the surrounding landscape. Consulting with an architect or designer can help you determine the best configuration for your L-shaped building plan.
Incorporating Outdoor Spaces into an L-Shaped Building Plan
One of the key advantages of an L-shaped building plan is the ability to incorporate outdoor spaces seamlessly. Outdoor areas can enhance the overall living experience by providing additional spaces for relaxation, entertainment, and connection with nature. Here are some tips for incorporating outdoor spaces into your L-shaped building plan:
- Patios and Decks: Consider adding a patio or deck to one or both wings of the L shape. These spaces can be used for outdoor dining, lounging, or entertaining guests. They can also provide a seamless transition between indoor and outdoor living areas.
- Gardens and Landscaping: Incorporate gardens and landscaping elements into your L-shaped building plan to create a visually appealing and functional outdoor space. Planting trees, shrubs, and flowers can add color, texture, and privacy to your property.
- Pool and Spa Areas: If you have the space, consider adding a pool or spa area to your L-shaped building plan. These features can provide a luxurious and relaxing retreat, perfect for unwinding after a long day.
Incorporating outdoor spaces into your L-shaped building plan can significantly enhance the overall living experience. By carefully planning and designing these areas, you can create a harmonious blend of indoor and outdoor living spaces that cater to your specific needs and preferences.
Case Studies: Successful L-Shaped Building Plans
To gain a better understanding of how an L-shaped building plan can be implemented successfully, let's explore a few case studies:
- Modern Residential Home: A modern residential home in a suburban area features a two-story L-shaped building plan. The lower level includes an open-concept living room, kitchen, and dining area, while the upper level houses the bedrooms and bathrooms. The L shape allows for ample natural light and ventilation, creating a bright and airy living space. The outdoor patio and garden provide additional spaces for relaxation and entertainment.
- Commercial Office Space: A commercial office space in an urban setting utilizes a single-story L-shaped building plan. The layout includes a reception area, conference rooms, and open-plan workspaces. The L shape provides a clear separation between public and private areas, ensuring a functional and efficient workspace. The outdoor courtyard offers a peaceful retreat for employees to take breaks and recharge.
- Multi-Generational Family Home: A multi-generational family home in a rural area features a split-level L-shaped building plan. The lower level includes a living room, kitchen, and dining area, while the upper level houses the bedrooms and bathrooms. The L shape allows for a natural separation between the living spaces of different generations, providing privacy and independence for each family member. The outdoor deck and garden offer additional spaces for family gatherings and outdoor activities.
These case studies demonstrate the versatility and adaptability of an L-shaped building plan. Whether you're designing a residential home, commercial space, or multi-generational family home, the L shape can be tailored to meet your specific needs and preferences.

In conclusion, an L-shaped building plan offers a unique and practical solution for designing efficient and functional living spaces. With its efficient use of space, natural light and ventilation, flexibility in design, and ability to incorporate outdoor spaces, the L shape is a popular choice for both residential and commercial properties. By carefully considering the orientation, room placement, flow, and connectivity, you can create a harmonious and functional L-shaped building plan that caters to your specific needs and preferences. Whether you’re planning a new home, renovating an existing one, or designing a commercial space, understanding the benefits and considerations of an L-shaped building plan can help you make informed decisions and achieve your design goals.
Related Terms:
- l shape shack plan house
- l shaped residential building plans
- l shaped modern house plans
- l shaped house layout plans
- l shaped small house design
- l shaped small house plans