Learning

Concrete Shed Foundation

Concrete Shed Foundation
Concrete Shed Foundation

Building a shed can be an exciting project, whether you're looking to create additional storage space, a workshop, or a cozy outdoor retreat. One of the most critical aspects of any shed construction is the foundation. A solid concrete shed foundation ensures stability, longevity, and protection against the elements. This guide will walk you through the steps to build a durable concrete shed foundation, from site preparation to pouring the concrete.

Site Preparation

Before you begin any construction, it's essential to prepare the site properly. This step involves selecting the right location, clearing the area, and ensuring the ground is level.

Selecting the Location: Choose a flat, well-drained area for your shed. Avoid low-lying spots that may collect water. Consider the proximity to your home and any utility lines that might be in the way.

Clearing the Area: Remove any vegetation, rocks, and debris from the site. This will provide a clean surface for your foundation.

Leveling the Ground: Use a level and a rake to ensure the ground is even. You may need to add or remove soil to achieve the desired levelness.

Marking the Foundation

Once the site is prepared, the next step is to mark the dimensions of your concrete shed foundation. This involves measuring and staking out the area where the foundation will be poured.

Measure the Dimensions: Use the blueprints of your shed to determine the exact size of the foundation. Measure and mark the corners with stakes.

Create a String Line: Run strings between the stakes to outline the perimeter of the foundation. This will serve as a guide for digging and pouring the concrete.

Excavating the Site

After marking the foundation, it's time to excavate the site. This step involves digging out the area to the required depth and width.

Determine the Depth: The depth of the excavation will depend on the height of your shed's floor and the thickness of the concrete slab. A common depth is about 4-6 inches below the final grade.

Dig the Area: Use a shovel or a small excavator to dig out the marked area to the desired depth. Ensure the sides are straight and the bottom is level.

Create a Gravel Base: Fill the excavated area with a layer of gravel. This will provide a stable base for the concrete and improve drainage. Compact the gravel using a plate compactor or a hand tamper.

Building the Forms

Forms are temporary structures that hold the concrete in place until it cures. They are essential for creating a level and well-defined concrete shed foundation.

Choose the Right Materials: Forms can be made from plywood, OSB (oriented strand board), or metal. Ensure the material is sturdy and can withstand the weight of the wet concrete.

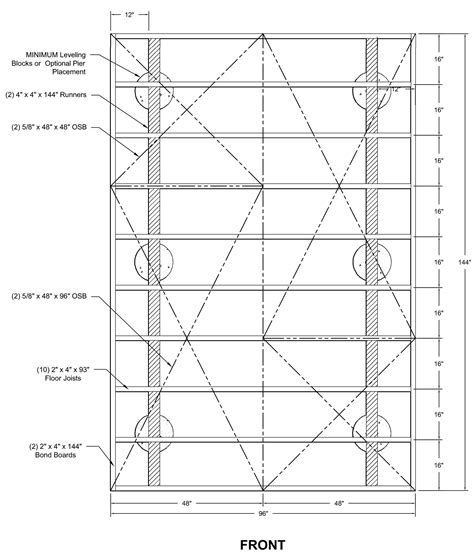
Construct the Forms: Build the forms to the exact dimensions of your foundation. Use 2x4 lumber to create a frame and secure the forms with stakes and screws. Ensure the forms are level and square.

Add Reinforcement: Place rebar or wire mesh within the forms to reinforce the concrete. This will add strength and durability to the foundation.

Pouring the Concrete

Pouring the concrete is a critical step that requires careful planning and execution. Follow these steps to ensure a smooth and successful pour.

Prepare the Concrete Mix: Order the concrete from a local supplier. Ensure the mix is suitable for a shed foundation, typically a 3000-3500 psi mix. You can also mix your own concrete using a cement mixer, but this requires precise measurements and mixing.

Pour the Concrete: Begin pouring the concrete into the forms, starting from one corner and working your way across. Use a rake or shovel to spread the concrete evenly. Ensure the surface is level and smooth.

Vibrate the Concrete: Use a concrete vibrator to remove air pockets and ensure the concrete settles properly. This step is crucial for creating a strong and durable foundation.

Finish the Surface: Once the concrete is poured and vibrated, use a bull float to smooth the surface. Follow up with a magnesium float to achieve a fine finish. Allow the concrete to cure for at least 24 hours before removing the forms.

Curing the Concrete

Curing is the process of allowing the concrete to harden and gain strength. Proper curing is essential for a durable concrete shed foundation.

Keep the Concrete Moist: Cover the concrete with plastic sheeting or wet burlap to retain moisture. This will help the concrete cure evenly and prevent cracking.

Avoid Foot Traffic: Keep people and animals off the concrete for at least 7 days. This will allow the concrete to gain sufficient strength before being subjected to weight.

Remove the Forms: After 24-48 hours, carefully remove the forms. Inspect the edges of the foundation for any signs of damage or unevenness.

Final Inspection: Once the concrete has fully cured, inspect the foundation for any cracks or imperfections. Address any issues promptly to ensure the longevity of your shed.

🔍 Note: The curing process can take up to 28 days for the concrete to reach its full strength. Be patient and avoid placing heavy objects on the foundation during this time.

Additional Considerations

Building a concrete shed foundation involves more than just pouring concrete. Consider the following factors to ensure a successful project.

Weather Conditions: Avoid pouring concrete in extreme temperatures or during rain. Concrete sets best in temperatures between 50°F and 90°F (10°C and 32°C). If you must pour in cold weather, use heated concrete or insulating blankets to maintain the temperature.

Drainage: Ensure proper drainage around the foundation to prevent water from pooling and causing damage. Consider installing a French drain or grading the soil away from the foundation.

Permits and Regulations: Check local building codes and obtain any necessary permits before starting your project. Compliance with regulations will ensure your shed is safe and legal.

Professional Help: If you're not experienced in concrete work, consider hiring a professional. A skilled contractor can ensure the foundation is built correctly and save you time and effort.

Cost Considerations: The cost of a concrete shed foundation can vary depending on the size, materials, and labor. Plan your budget accordingly and factor in any additional expenses, such as permits and tools.

Tools and Equipment: Gather all the necessary tools and equipment before starting the project. This may include shovels, rakes, levels, forms, rebar, concrete mix, and finishing tools.

Safety Precautions: Wear appropriate safety gear, including gloves, safety glasses, and sturdy boots. Follow safety guidelines when handling concrete and operating power tools.

Maintenance: Regularly inspect your shed foundation for any signs of damage or wear. Address any issues promptly to maintain the integrity of the structure.

Future Expansions: If you plan to expand your shed in the future, consider building a larger foundation to accommodate the additional space.

Environmental Impact: Choose eco-friendly materials and practices to minimize the environmental impact of your project. Consider using recycled concrete or sustainable building materials.

Aesthetics: While functionality is key, don't overlook the aesthetic appeal of your shed. A well-designed foundation can enhance the overall look of your outdoor space.

Insulation: If you plan to use your shed as a living space or workshop, consider insulating the foundation to maintain a comfortable temperature year-round.

Ventilation: Proper ventilation is essential for preventing moisture buildup and mold growth. Ensure your shed has adequate ventilation to keep the interior dry and healthy.

Accessibility: Consider the accessibility of your shed. Ensure there is enough space for easy entry and exit, and that the foundation is level to prevent tripping hazards.

Durability: Choose high-quality materials and follow best practices to ensure the durability of your concrete shed foundation. A well-built foundation will last for many years and provide a solid base for your shed.

Customization: Customize your foundation to meet your specific needs. Whether you need a larger shed, a specific shape, or additional features, a custom foundation can accommodate your requirements.

Time Management: Plan your project carefully and allocate enough time for each step. Rushing the process can lead to mistakes and compromise the quality of the foundation.

Community Involvement: Engage with your community for support and advice. Local builders, neighbors, and online forums can provide valuable insights and tips for your project.

Educational Resources: Take advantage of educational resources, such as books, videos, and online tutorials, to learn more about building a concrete shed foundation. The more knowledge you have, the better equipped you'll be to tackle the project.

Sustainability: Incorporate sustainable practices into your project to reduce waste and conserve resources. Use recycled materials, minimize energy consumption, and dispose of waste responsibly.

Innovation: Stay updated with the latest innovations in shed construction. New materials and techniques can improve the efficiency, durability, and aesthetics of your shed foundation.

Collaboration: Work with family, friends, or neighbors to complete the project. Collaboration can make the process more enjoyable and efficient.

Documentation: Keep detailed records of your project, including plans, materials, and progress photos. This documentation can be useful for future reference or if you decide to sell your property.

Reflection: After completing the project, take time to reflect on what you've learned and how you can improve future projects. Building a shed foundation is a valuable learning experience that can enhance your skills and knowledge.

Future Projects: Use the skills and knowledge gained from building a concrete shed foundation to tackle future projects. Whether you're building a deck, patio, or another structure, the principles of foundation construction remain the same.

Community Contribution: Share your knowledge and experience with others in your community. Offer advice, tips, and support to those embarking on similar projects.

Continuous Learning: Building a shed foundation is just the beginning. Continue learning about construction techniques, materials, and best practices to stay informed and skilled.

Safety First: Always prioritize safety in your projects. Follow safety guidelines, use appropriate protective gear, and be mindful of potential hazards.

Quality Over Quantity: Focus on the quality of your work rather than rushing to complete the project. A well-built foundation will last longer and provide better support for your shed.

Environmental Awareness: Be aware of the environmental impact of your project and take steps to minimize it. Use eco-friendly materials, conserve resources, and dispose of waste responsibly.

Community Engagement: Engage with your community to share your project and learn from others. Community involvement can enrich your experience and provide valuable insights.

Future Planning: Plan for future projects and expansions. A well-built foundation can accommodate additional structures or modifications, making it a versatile investment.

Sustainable Practices: Incorporate sustainable practices into your project to reduce waste and conserve resources. Use recycled materials, minimize energy consumption, and dispose of waste responsibly.

Innovative Solutions: Stay updated with the latest innovations in shed construction. New materials and techniques can improve the efficiency, durability, and aesthetics of your shed foundation.

Collaborative Efforts: Work with family, friends, or neighbors to complete the project. Collaboration can make the process more enjoyable and efficient.

Documentation and Reflection: Keep detailed records of your project and reflect on what you've learned. This documentation can be useful for future reference or if you decide to sell your property.

Continuous Improvement: Use the skills and knowledge gained from building a concrete shed foundation to tackle future projects. Building a shed foundation is a valuable learning experience that can enhance your skills and knowledge.

Community Contribution: Share your knowledge and experience with others in your community. Offer advice, tips, and support to those embarking on similar projects.

Safety and Quality: Always prioritize safety and quality in your projects. Follow safety guidelines, use appropriate protective gear, and be mindful of potential hazards.

Environmental Responsibility: Be aware of the environmental impact of your project and take steps to minimize it. Use eco-friendly materials, conserve resources, and dispose of waste responsibly.

Community Involvement: Engage with your community to share your project and learn from others. Community involvement can enrich your experience and provide valuable insights.

Future Expansions: Plan for future projects and expansions. A well-built foundation can accommodate additional structures or modifications, making it a versatile investment.

Sustainable Construction: Incorporate sustainable practices into your project to reduce waste and conserve resources. Use recycled materials, minimize energy consumption, and dispose of waste responsibly.

Innovative Techniques: Stay updated with the latest innovations in shed construction. New materials and techniques can improve the efficiency, durability, and aesthetics of your shed foundation.

Collaborative Projects: Work with family, friends, or neighbors to complete the project. Collaboration can make the process more enjoyable and efficient.

Documentation and Learning: Keep detailed records of your project and reflect on what you've learned. This documentation can be useful for future reference or if you decide to sell your property.

Continuous Learning: Building a shed foundation is just the beginning. Continue learning about construction techniques, materials, and best practices to stay informed and skilled.

Safety and Quality: Always prioritize safety and quality in your projects. Follow safety guidelines, use appropriate protective gear, and be mindful of potential hazards.

Environmental Awareness: Be aware of the environmental impact of your project and take steps to minimize it. Use eco-friendly materials, conserve resources, and dispose of waste responsibly.

Community Engagement: Engage with your community to share your project and learn from others. Community involvement can enrich your experience and provide valuable insights.

Future Planning: Plan for future projects and expansions. A well-built foundation can accommodate additional structures or modifications, making it a versatile investment.

Sustainable Practices: Incorporate sustainable practices into your project to reduce waste and conserve resources. Use recycled materials, minimize energy consumption, and dispose of waste responsibly.

Innovative Solutions: Stay updated with the latest innovations in shed construction. New materials and techniques can improve the efficiency, durability, and aesthetics of your shed foundation.

Collaborative Efforts: Work with family, friends, or neighbors to complete the project. Collaboration can make the process more enjoyable and efficient.

Documentation and Reflection: Keep detailed records of your project and reflect on what you've learned. This documentation can be useful for future reference or if you decide to sell your property.

Continuous Improvement: Use the skills and knowledge gained from building a concrete shed foundation to tackle future projects. Building a shed foundation is a valuable learning experience that can enhance your skills and knowledge.

Community Contribution: Share your knowledge and experience with others in your community. Offer advice, tips, and support to those embarking on similar projects.

Safety and Quality: Always prioritize safety and quality in your projects. Follow safety guidelines, use appropriate protective gear, and be mindful of potential hazards.

Environmental Responsibility: Be aware of the environmental impact of your project and take steps to minimize it. Use eco-friendly materials, conserve resources, and dispose of waste responsibly.

Community Involvement: Engage with your community to share your project and learn from others. Community involvement can enrich your experience and provide valuable insights.

Future Expansions: Plan for future projects and expansions. A well-built foundation can accommodate additional structures or modifications, making it a versatile investment.

Sustainable Construction: Incorporate sustainable practices into your project to reduce waste and conserve resources. Use recycled materials, minimize energy consumption, and dispose of waste responsibly.

Innovative Techniques: Stay updated with the latest innovations in shed construction. New materials and techniques can improve the efficiency, durability, and aesthetics of your shed foundation.

Collaborative Projects: Work with family, friends, or neighbors to complete the project. Collaboration can make the process more enjoyable and efficient.

Documentation and Learning: Keep detailed records of your project and reflect on what you've learned. This documentation can be useful for future reference or if you decide to sell your property.

Continuous Learning: Building a shed foundation is just the beginning. Continue learning about construction techniques, materials, and best practices to stay informed and skilled.

Safety and Quality: Always prioritize safety and quality in your projects. Follow safety guidelines, use appropriate protective gear, and be mindful of potential hazards.

Environmental Awareness: Be aware of the environmental impact of your project and take steps to minimize it. Use eco-friendly materials, conserve resources, and dispose of waste responsibly.

Community Engagement: Engage with your community to share your project and learn from others. Community involvement can enrich your experience and provide valuable insights.

Future Planning: Plan for future projects and expansions. A well-built foundation can accommodate additional structures or modifications, making it a versatile investment.

Sustainable Practices: Incorporate sustainable practices into your project to reduce waste and conserve resources. Use recycled materials, minimize energy consumption, and dispose of waste responsibly.

Innovative Solutions: Stay updated with the latest innovations in shed construction. New materials and techniques can improve the efficiency, durability, and aesthetics of your shed foundation.

Collaborative Efforts: Work with family, friends, or neighbors to complete the project. Collaboration can make the process more enjoyable and efficient.

Documentation and Reflection: Keep detailed records of your project and reflect on what you've learned. This documentation can be useful for future reference or if you decide to sell your property.

Continuous Improvement: Use the skills and knowledge gained from building a concrete shed foundation to tackle future projects. Building a shed foundation is a valuable learning experience that can enhance your skills and knowledge.

Community Contribution: Share your knowledge and experience with others in your community. Offer advice, tips, and support to those embarking on similar projects.

Safety and Quality: Always prioritize safety and quality in your projects. Follow safety guidelines, use appropriate protective gear, and be mindful of potential hazards.

Environmental Responsibility: Be aware of the environmental impact of your project and take steps to minimize it. Use eco-friendly materials, conserve resources, and dispose of waste responsibly.

Community Involvement: Engage with your community to share your project and learn from others. Community involvement can enrich your experience and provide valuable insights.

Future Expansions: Plan for future projects and expansions. A well-built foundation can accommodate additional structures or modifications, making it a versatile investment.

Sustainable Construction: Incorporate sustainable practices into

Related Terms:

  • foundation for outdoor storage shed
  • concrete block shed foundation plans
  • concrete pillars for shed foundation
  • concrete block foundation for shed
  • building shed foundation above ground
  • concrete shed foundation cost
Facebook Twitter WhatsApp
Related Posts
Don't Miss